Accommodation
A summer house made just for you!
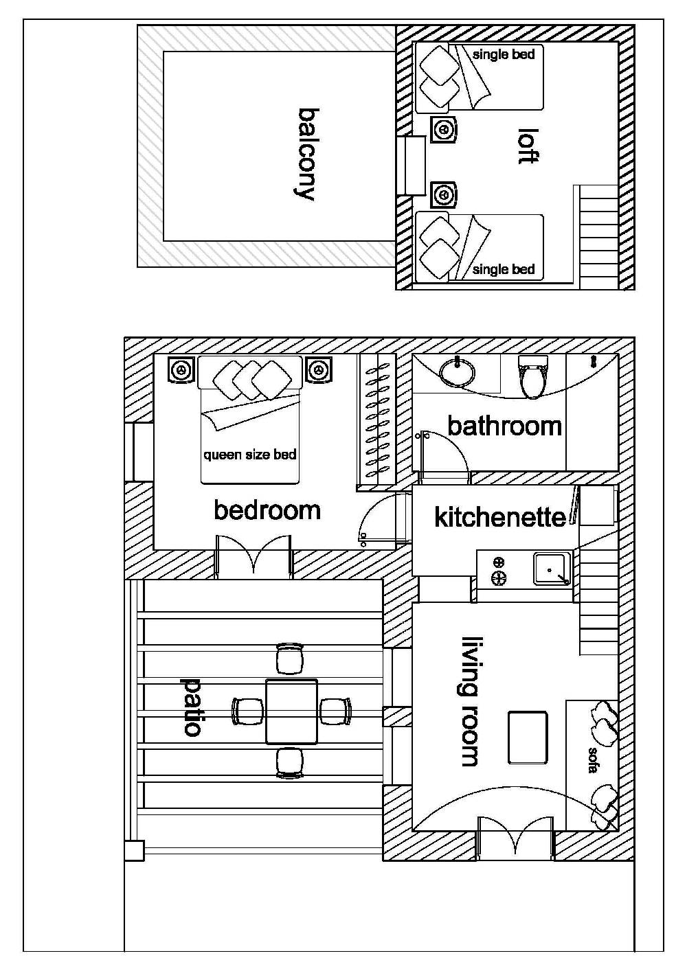
The Sunhaus split level apartments are two-storey dreamy summer houses of 45m2 each, featuring a bedroom, an open loft with two single beds, a small living room, a kitchenette and a 30m2 private courtyard with a small balcony on the upper floor.
The apartments can accommodate up to 4 guests each, who wish to enjoy their holidays in privacy and comfort and all that, just within a few steps from the beach.
Combine staying in your very own house while having the sea and a wide range of shops and activities right at your feet. Let’s see the complete list of the details that comprise the premises of Sunhaus below!









































































